
Velkommen til en ny omgang SkagenBolig Præsenterer, hvor vi denne gang ser nærmere på den skønneste Plesnerbolig i Skagen Østerby, som udover masser af charme også byder på god plads til hele familien.
Boligtype: Villa, fritidsbolig
Boligareal: 209 m2
Kontantpris: 6.795.00,-
Dette smukke dobbelthus ligger kun få hundrede meter fra Sønderstrand og byder samtidig på en unik beliggenhed, hvor man kan færdes uforstyrret både inde i huset og ude i haven og den hyggelige gårdhave.
Her er det muligt at finde ro væk fra det mere livlige bymiljø. Boligens placering på grunden giver mange solrige og læfyldte kroge med privatliv. Udover nærheden til Sønderstrand er der kort gå- eller cykelafstand til både Grenen og Skagens centrum.
Dermed er det også let og ligetil at få det bedste ud af alt hvad Skagen har at byde på, nemlig den betagende natur, det store udbud af specialbutikker, skønne restauranter og store udbud af kulturinstitutioner og arrangementer.
Villaen er opført i 1918 og tegnet af den kendte arkitekt Ulrik Plesner på opfordring fra bygherren, hvilket afspejles i villaens karakteristiske arkitektur. Der er tale om gedigen byggekvalitet med stor vægt på æstetik, hvilket giver boligen en helt særlig stemning. Huset fremstår velholdt med respekt for det originale udtryk, men er samtidig opdateret, så det matcher nutidens behov.
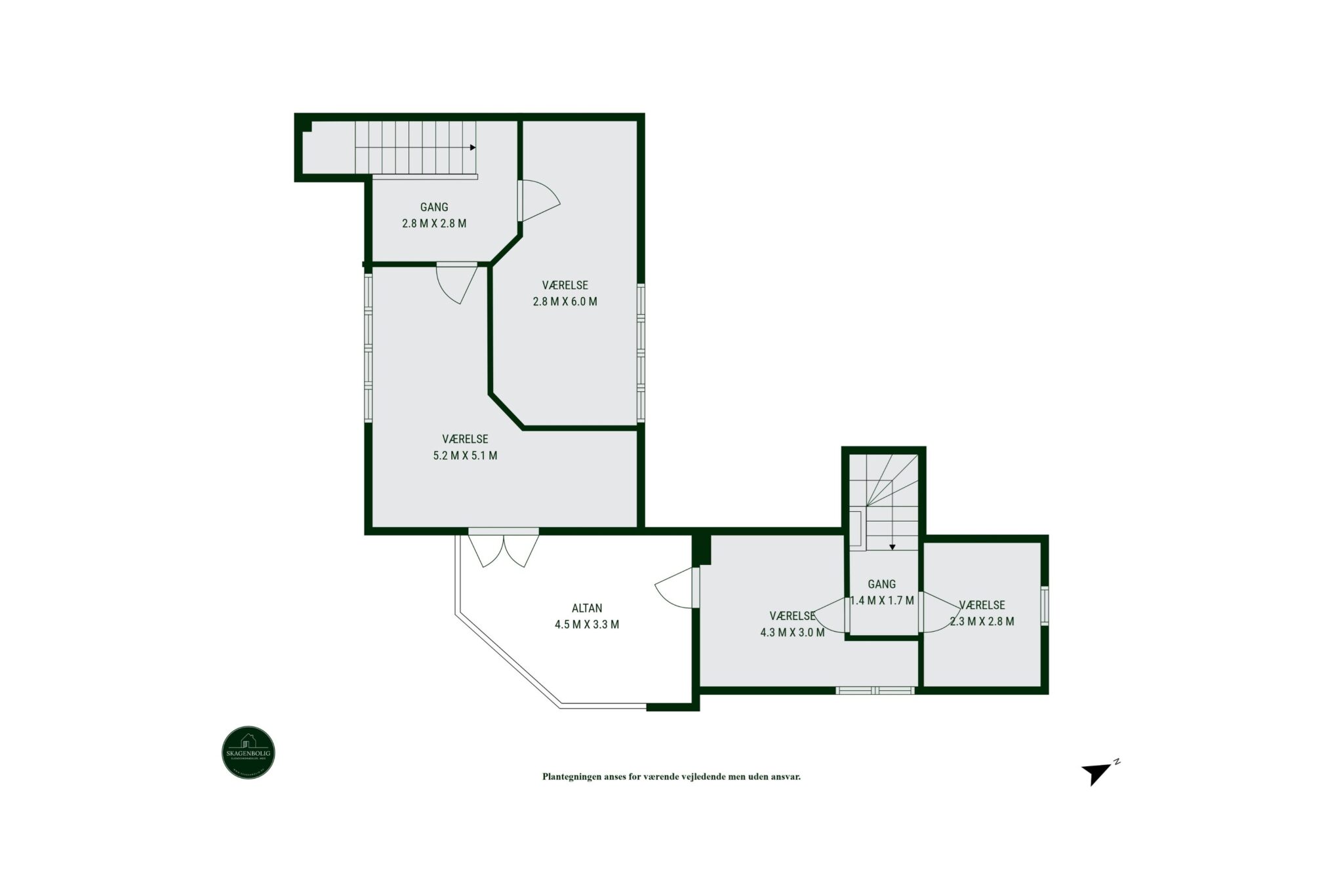
Villaen rummer 209 m² boligareal fordelt på 131 m² i stueetagen og 78 m² på første sal. Grunden er på 853 m². Derudover er der en ekstra bygning på 86 m² i samme stil som hovedhuset. I dag benyttes den til kreative aktiviteter, men den kan nemt indrettes som anneks. I forlængelse af bygningen findes et mindre viktualierum og et værksted med tørrerum m.m. Bagerst i haven er der et udhus i træ – og et charmerende lysthus opført af gamle vinduer fra Jeckels Hotel i Gl. Skagen. Man bydes velkommen i en entré med Trip Trap trægulv og en række indbyggede skabe, produceret på det tidligere Skagen Yachtværft. I et af skabene er der installeret vaskemaskine og tørretumbler. Badeværelset er med bruseniche, gulvvarme og håndklædevarmer.
Køkkenet er udstyret med kogeø, frithængende smedejernsemhætte, indbygget ovn, køle-/fryseskab samt mulighed for spiseplads. Den rummelige stue har plads til flere siddeområder og rummer en sjælden, smuk pejs bygget i pigsten fra stranden. Herfra er der udgang gennem to dobbelte terrassedøre til den frodige have. Stuen har et flot, oprindeligt trægulv og et smukt bjælkeloft.
Fra stuen fører en trappe op til førstesalen, som rummer to store værelser og et repos. Det ene værelse har udgang til en skøn altan med udsigt til både gårdhave og Det Hvide Fyr. Altanen er privat og ligger godt i læ. Boligen rummer også en stor spisestue med et fantastisk lysindfald fra tre smukke vinduespartier og udgang til en anlagt og ugeneret gårdhave. Fra spisestuen er der adgang til et stort, nordvendt soveværelse og eget badeværelse med bruseniche, håndklædevarmer og gulvvarme. Spisestuen leder desuden tilbage til entréen og trappen til førstesalen, hvor de to nævnte værelser og altanen igen er at finde.
En havearkitekt har udformet designet til både gårdhaven, indkørslen (med plads til to biler side om side) og dele af haven. Villaen har i de fleste rum originale lofter, smukke trægulve og mange oprindelige vinduer. Opvarmning sker via et nyere jordvarmeanlæg, mens annekset opvarmes med varmepumpe.
En villa i absolut særklasse – beliggende tæt på strand, seværdigheder og centrum, men samtidig i et fredeligt og tilbagetrukket område. Huset er optaget i registranten over bevaringsværdige ejendomme og kendt af både skagboere og besøgende. En gæstfri og stemningsfuld bolig med en spændende historie, som også har været omtalt i Børsen, ugebladet Søndag og vist på TV2’s regionale program “Vizitten”.