
Velkommen til en ny omgang home Skagen præsenterer, hvor vi denne gang ser nærmere på en smukt renoveret og yderst velindrettet villa som er beliggende tæt på både en af Skagens bedste indkøbsmuligheder samt ikke mindst smuk og enestående natur.
Boligtype: villa
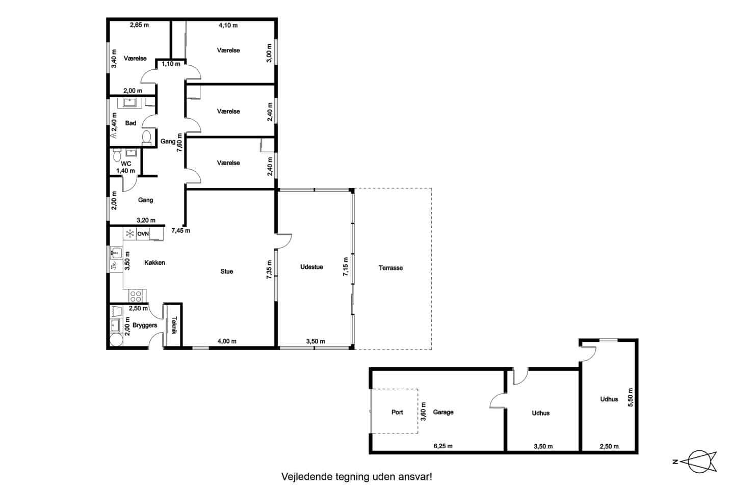
Boligareal: 129 m2
Kontantpris: 2.095.000,-
På Brune Banke 20 udbydes denne velindrettede villa, som henvender sig perfekt til børnefamilien, der ønsker gode rammer om hverdagen og samtidig sætter pris på nærhed til gode indkøbsmuligheder.
Beliggenheden byder samtidig på kort afstand til grønne områder og natur, som indbyder til gå- og cykelture og et aktivt udeliv for hele familien.
I området er der gode stiforbindelser til byens skoler og daginstitutioner, ligesom der er gode cykelstier til midtbyen.
Boligen er indrettet med fire regulære værelser, som giver plads til både børn, hjemmearbejde og gæster. Der er både badeværelse og separat gæstetoilet, hvilket bidrager til en praktisk indretning i en travl familiehverdag.
Køkken/alrum/stue er samlet i ét åbent og lyst opholdsrum, hvor familien naturligt samles omkring måltider og dagligdagen. Her er god plads til både spiseafdeling og opholdsstue. Der er gulvvarme i køkken/alrum/stue samt i bryggers, badeværelse og gæstetoilet. Villaen blev indvendigt renoveret i 2023 og fremstår pæn og tidssvarende.
Udenfor findes en overskuelig have med plads til leg, ophold og terrassemiljø. Haven er let at holde og giver gode muligheder for både børneleg og afslapning.
Til ejendommen hører en muret garage med tilhørende værksted, som giver ekstra anvendelsesmuligheder – hvad enten det er til bil, opbevaring, hobby eller mindre projekter.
Brune Banke 20 er en skøn familievilla med en god planløsning, rolige omgivelser og nærhed til naturen og indkøb – et hjem, hvor der skabes gode rammer for hele familien.